亲爱的朋友们,是否还在为选房而烦恼?是否渴望拥有一套真正适合自己的“刚需好房子”?现在,机会来了!合肥市房地产业协会从部分房地产企业征集了一批70-90平米的精致小户型方案,开展“新计容刚需好房子户型设计网上评选”活动。新计容, 新体验,小空间也有大精彩!这不仅是一次户型设计的创新,更是响应住建部倡导的“好房子”建设的重要举措。
相关背景解读
什么是“新计容”?
合肥市2024年7月2日发布《优化调整建筑工程容积率计算规则等相关规划管理要求》,新规通过优化阳台、架空层、连廊等空间计算规则以及提高层高基准、拓展公共空间等方式,将更多公共区域和配套设施不计入容积率。这一调整让开发商能更灵活设计户型,从而大幅提升实际得房率(部分项目可达90%以上)。这意味着同样建筑面积下,购房者能获得更多实用空间!
什么是“刚需好房子”?
本次评选聚焦“刚需好房子”,而且是70-90平米左右面积偏小的户型,对新置业的年轻人很nice,主打:
高性价比:告别“豪宅化”的高不可攀,在有限的面积里,精心规划每一寸空间,确保功能齐全;
高实用性:多房、横厅、多阳台等创新布局,提升空间感和生活互动性;
高体验感:鼓励采用绿色低碳和智能化的设计理念,提升居住的舒适度和便捷性。
选出您心中最理想的户型!每人仅可投票一次,可多选
以下排名不分先后,仅为展示
请按作品编号进行投票
投票时间为即刻起-4月7日24:00
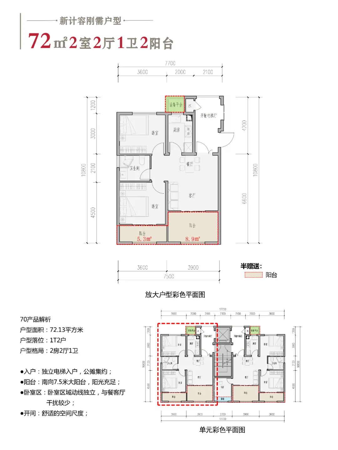
70平方米户型图
NO.1

NO.2

NO.3

NO.4

NO.5

NO.6

NO.7

NO.8

NO.9

NO.10

NO.11

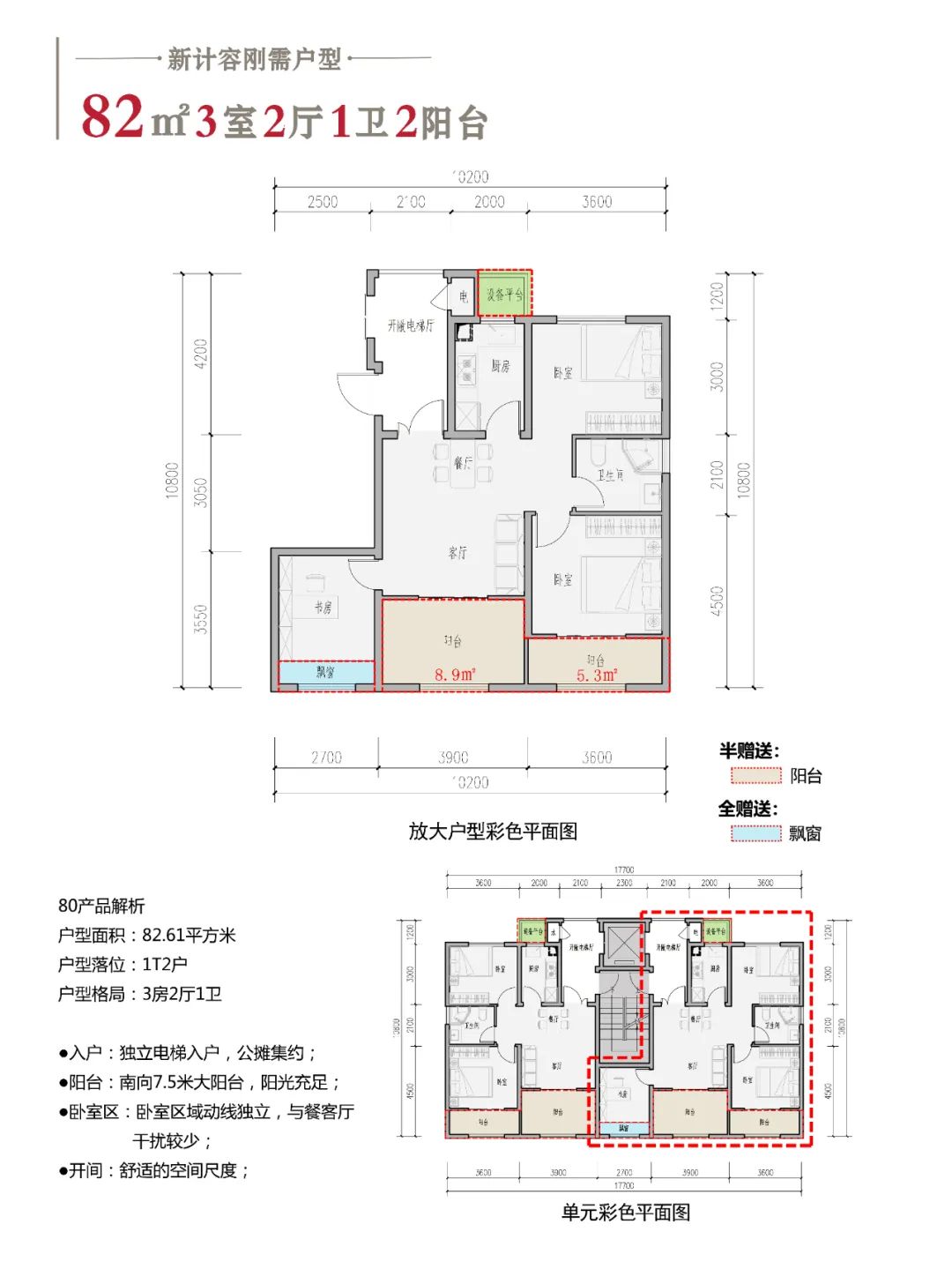
80平方米户型图
NO.1

NO.2

NO.3

NO.4

NO.5

NO.6

NO.7

NO.8

NO.9

NO.10

NO.11

NO.12

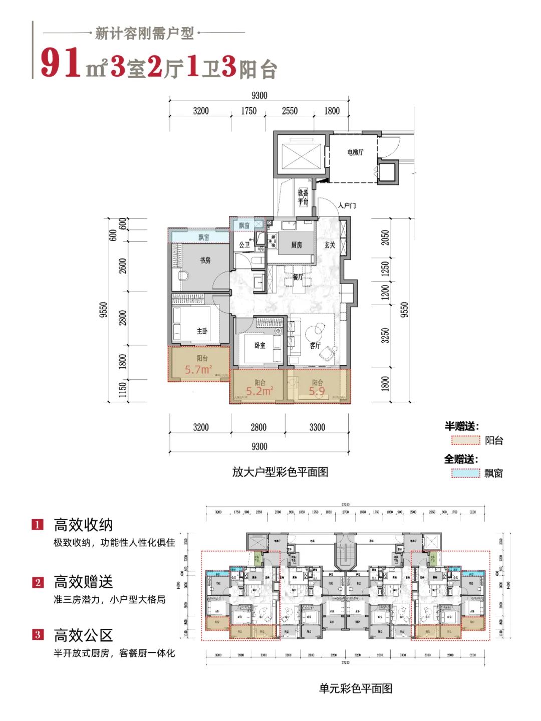
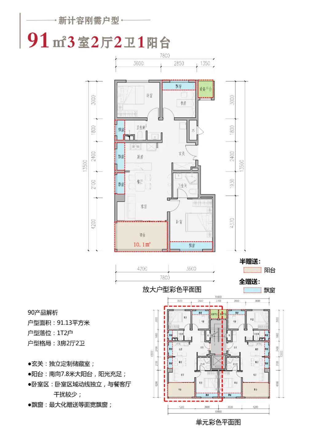
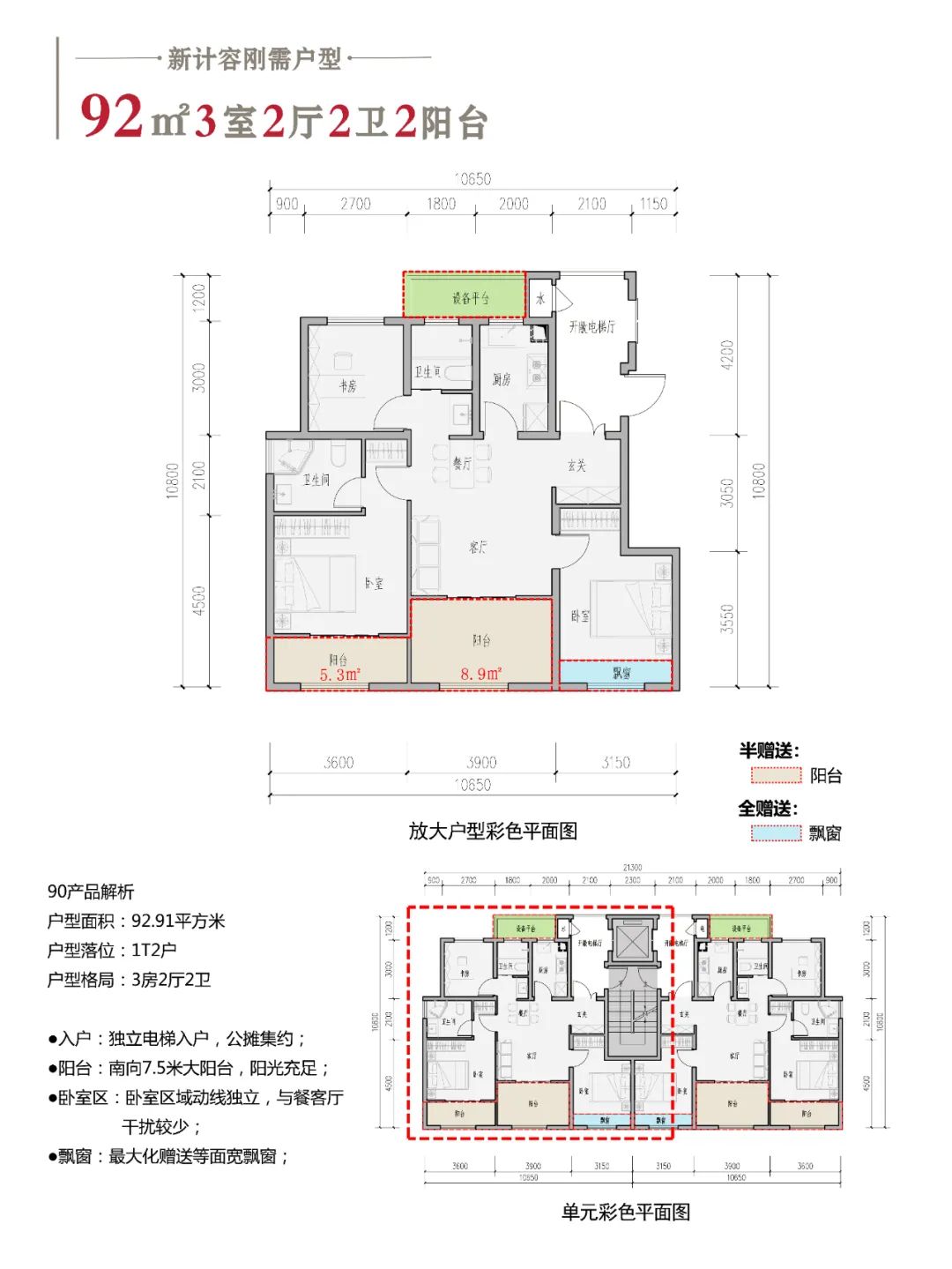
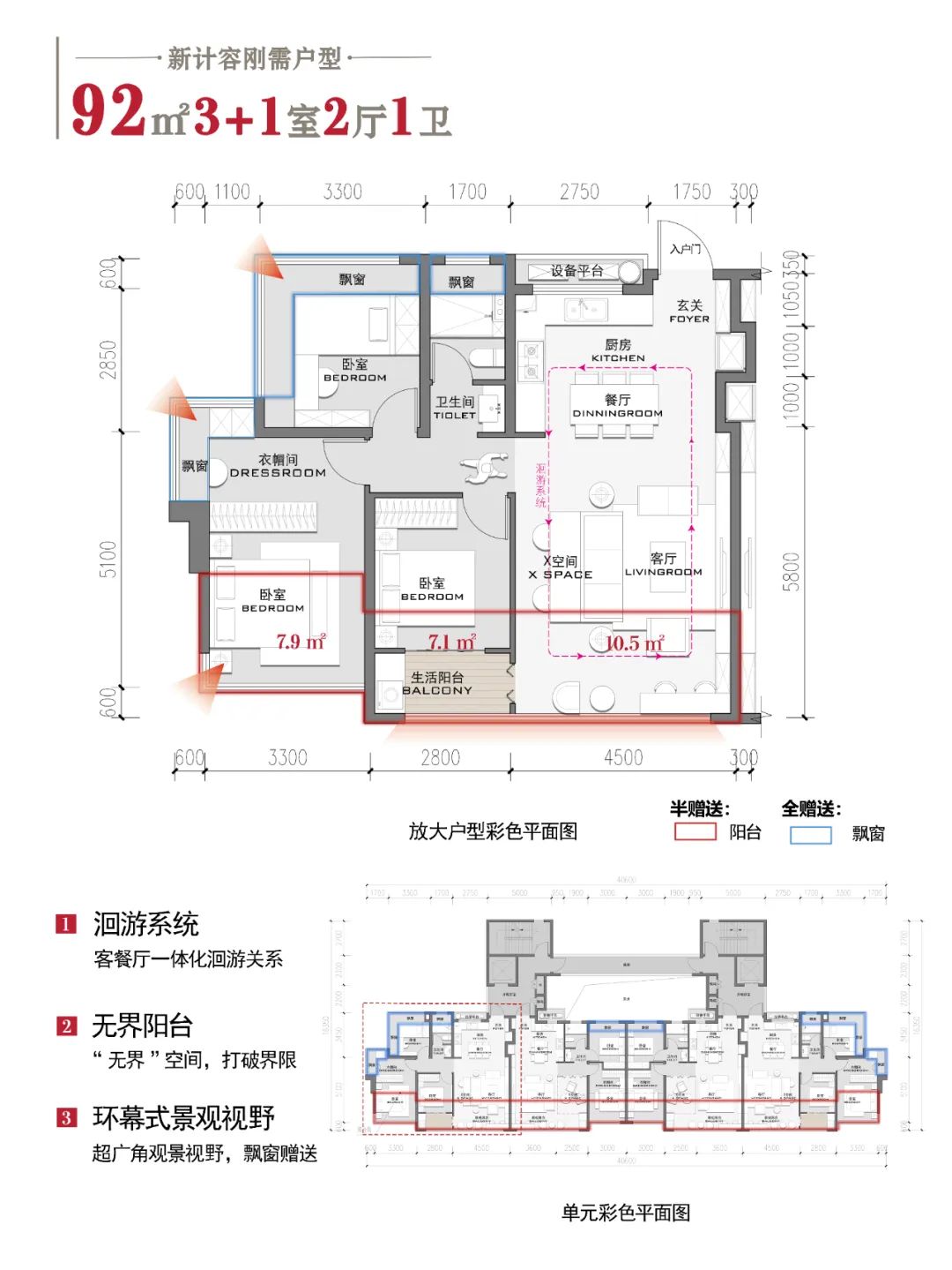
90平方米户型图
NO.1

NO.2

NO.3

NO.4

NO.5

NO.6

NO.7

NO.8

NO.9

NO.10

NO.11

NO.12

NO.13

NO.14

NO.15

NO.16

NO.17

点击下方链接即可参与投票:
https://mp.weixin.qq.com/s/11-4sJSVVSkvK8ViZgFEsQ